Bielsko-Biała, Komorowice Śląskie
- Obiekt na sprzedaż

750,00 m2 6 000,00 zł/m2

4 500 000 zł

Józef Kufel

właściciel biura

Opis nieruchomości


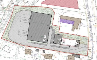
TEREN INWESTYCYJNY O ŁĄCZNEJ POW. OK. 95 ARÓW, ZABUDOWANY 3 KONDYGNACYJNYM BUDYNKIEM ADMINISTRACYJNO – BIUROWYM O POW. OK. 750 MKW., POŁOŻONY W PRZEMYSŁOWEJ DZIELNICY MIASTA BIELSKA-BIAŁEJ – KOMOROWICACH KRAKOWSKICH PRZY UL. KATOWICKIEJ (DOJAZD DLA TIR)

DZIAŁKA POSIADA AKTUALNE WARUNKI ZABUDOWY: budowa budynku magazynowo - usługowego oraz rozbudowa istniejącego budynku handlowo - usługowego do łącznej powierzchni zabudowy ok. 3160 mkw., w tym istniejąca powierzchnia zabudowy ok. 360 mkw. pow. zabudowy).  


LOKALIZACJA: w całości ogrodzona parcela o pow. ok. 96 arów z czego ok. 80 arów stanowi utwardzony plac z możliwością zaadoptowania na skład budowlany, parking, zabudowę typu wiata, hala magazynowa etc.,
zlokalizowana w sąsiedztwie obiektów produkcyjnych, usługowych, handlowych, magazynowych,   składów budowlanych, hurtowni; Przed budynkiem biurowym znajduje się wybrukowany duży parking na około 30 samochodów. Wjazd na teren obiektu odbywa się bezpośrednio z drogi publicznej. Posiada bardzo dobre połączenie z obwodnicą oraz centrum miasta. Dojazd dla TIR-ów.
 

OBIEKT SKŁADA SIĘ:
z budynku handlowo-usługowego o powierzchni 750m2 z możliwością rozbudowy o 300m2 powierzchni zabudowy. Zamierzenie inwestycyjne polega również na budowie hali magazynowo - usługowej o powierzchni zabudowy do około 2500m2 (magazynowanie – konfekcjonowanie, przeładunek, pakowanie wyrobów spożywczych, materiałów budowlanych, odzieży, elektronarzędzi, urządzeń sanitarnych, mebli i ich komponentów, narzędzi, części samochodowych, elementów stalowych) z wykluczeniem przedsięwzięć mogących znacząco  lub potencjalnie oddziaływać na środowisko.


DANE TECHNICZNE:
obiekt murowany, wykonany w nowych technologiach z zewnątrz wykończony ozdobnym tynkiem elewacyjnym. Dach dwuspadowy kryty blachą. Ściany wewnętrzne gipsowane i malowane, sufity z oświetleniem kasetonowym, podłogi w biurach wyłożone wykładziną dywanową, ciągi komunikacyjne i zaplecze sanitarne wykafelkowane.


POWIERZCHNIA BUDYNKU: 751,90 mkw.

PARTER 276,82 mkw. – w tym: sala sprzedażowa o pow. ok. 90 mkw., 3 x pokój biurowy o pow. ok. 24 mkw., 24 mkw., 17 mkw., hall o pow. ok. 62 mkw., portiernia o pow. ok. 11 mkw., zaplecze socjalne, korytarz oraz 2 x WC,);

I PIĘTRO 252,63 mkw. – w tym: przestronny hol o pow. ok. 65 mkw., 7 x pom. biurowe o pow. ok. 15 mkw., 17 mkw., 17 mkw., 17 mkw., 26 mkw., 25 mkw., 25 mkw., archiwum o pow. ok. 8 mkw., otwarta klatka schodowa,  zaplecze kuchenne o pow. ok. 11 mkw., 2 x WC, pom. gosp.;

PODDASZE 222,45 mkw. – w tym: 2 x jednopokojowe mieszkanie wraz z łazienką z prysznicem i WC  o pow. około 2 x 30 mkw.;  4 x  biuro o pow. ok. 40 mkw., 11mkw., 20mkw., 12 mkw., hall o pow. ok. 14 mkw., 2 x korytarz o pow. ok. 23 mkw., 18 mkw., pom. gosp. o pow. ok. 11 mkw., 2 x WC;

MEDIA: energia, gaz, woda, kanalizacja, telefon, internet, alarm.
Budynek ogrzewany CO - własna kotłownia - Buderus.
 
CENA: 4.500.000 PLN ZW (SPRZEDAŻ SPÓŁKI)
 

ZAPRASZAMY DO KONTAKTU

Powyższa oferta ma charakter informacyjny i nie stanowi oferty handlowej w rozumieniu art. 66 1 Kodeksu Cywilnego oraz innych właściwych przepisów prawnych.

 

Nota prawna

Opis oferty zawarty na stronie internetowej sporządzany jest na podstawie oględzin nieruchomości oraz informacji uzyskanych od właściciela, może podlegać aktualizacji i nie stanowi oferty określonej w art. 66 i następnych K.C.

Szczegóły

Symbol oferty NJM-BS-1997
Powierzchnia 750,00 m²
Stan prawny Własność
Zagosp. działki zagospodarowana
Ukształtowanie działki płaska
Kształt działki prostokat
Przeznaczenie hali magazynowy
Dojazd asfalt
PLN
PLN
PLN
PLN
PLN
PLN
PLN
%
PLN
PLN
PLN

PLN

Dane:

PLN
%

Wynik:

PLN
pierwsza rata
ostatnia rata

Podobne oferty

Obiekt na sprzedaż - Bielsko-Biała, Komorowice Krakowskie
obiekt na sprzedaż - Bielsko-Biała, Komorowice Krakowskie

NJM-BS-2167

Bielsko-Biała, Komorowice…
obiekt na sprzedaż

1 875,00 m²

4 900 000
2 613,33 zł/m2
Dodaj
do notatnika
Obiekt na sprzedaż - Bielsko-Biała, Kamienica
obiekt na sprzedaż - Bielsko-Biała, Kamienica

NJM-BS-2154

Bielsko-Biała, Kamienica
obiekt na sprzedaż

362,00 m²

3 990 000
11 022,10 zł/m2
video
Dodaj
do notatnika
Obiekt na sprzedaż - Bielsko-Biała, Centrum
obiekt na sprzedaż - Bielsko-Biała, Centrum

EUR-BS-6367

Bielsko-Biała, Centrum
obiekt na sprzedaż

881,00 m²

3 490 000
3 961,41 zł/m2
video
Dodaj
do notatnika
Obiekt na sprzedaż - Bielsko-Biała, Centrum
obiekt na sprzedaż - Bielsko-Biała, Centrum

ORL-BS-2728

Bielsko-Biała, Centrum
obiekt na sprzedaż

1 050,00 m²

3 200 000
3 047,62 zł/m2
Dodaj
do notatnika

Napisz do nas

Proszę wypełnić to pole
Proszę wypełnić to pole
Proszę wypełnić to pole
Proszę wypełnić to pole
Zgodnie z ustawą z dnia 29 sierpnia 1997 r. o ochronie danych osobowych (Dz. U. z 2016 r. poz. 922) informujemy, że administratorem Twoich danych osobowych będzie Józef Kufel Nieruchomości z siedzibą przy al. Józefa Piłsudskiego 34/1, 34-300 Żywiec, NIP: 5531329480. Twoje dane będą przetwarzane jedynie w celu udzielenia odpowiedzi na przesłaną wiadomość. Twoje dane będą chronione i nie będą udostępniane innym odbiorcom, chyba że będzie to wynikać z przepisów prawa. Masz prawo do żądania od administratora dostępu do swoich danych osobowych oraz do ich sprostowania, usunięcia lub ograniczenia przetwarzania lub prawo do wniesienia sprzeciwu wobec przetwarzania.
Trwa wysyłanie...

Ta strona wykorzystuje pliki cookies w celach statystycznych oraz w celu dotosowania naszych serwisów do indywidualnych potrzeb klientów. Zmiany ustawień dotyczących plików cookie można dokonać w dowolnej chwili modyfikując ustawienia przeglądarki. Korzystanie z tej strony bez zmian ustawień dotyczących cookies oznacza, że będą one zapisane w pamięci urządzenia.

rozumiem