OFERTA ARCHIWALNA - NIE JEST JUŻ AKTUALNA

Wisła
- Obiekt na sprzedaż

333,09 m2 3 992,91 zł/m2

1 330 000 zł

sprzedane
Józef Kufel

właściciel biura

Opis nieruchomości

PEREŁKA w Beskidzie Śląskim DO SPRZEDANIA .

Kameralny, komfortowy i doskonale położony 10-pokojowy pensjonat.


Pensjonat "Nad Bankiem" znajduje się przy głównym deptaku w Wiśle, ul. 1-Maja 59.
Funkcjonuje od około 3 lat. Pomimo upływu czasu wszystkie rzeczy i urządzenia wyglądają jak nowe. Właściciele bardzo dbają o czystość obiektu oraz sprawność całego wyposażenia.  Po zakupie pensjonat może od razu funkcjonować i nie wymaga żadnych dodatkowych nakładów finansowych.

Pensjonat został wysoko oceniony przez gości zamawiających tutaj pobyt poprzez międzynarodowy serwis Booking.com. Jego ocena przez ostatnie 2 lata była bliska ideału 9,3 i 9,4 na 10. Ocena ta stanowi średnią ocenę za następujące elementy: personel, czystość, lokalizację, udogodnienia, komfort oraz stosunek jakości do ceny.

Obiekt jest łatwy w utrzymaniu. Można go traktować jak duże mieszkanie, gdzie nie musisz stale przebywać  i nie musisz utrzymywać ogrodu.
Pensjonat kupujesz z pełnym wyposażeniem w bardzo atrakcyjnej cenie 3993 zł/m2.

SZCZEGÓŁY OFERTY:

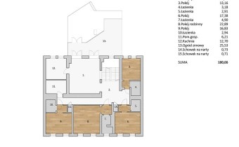
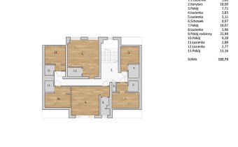
Pomieszczenia:
2 pokoje rodzinne (2 osoby dorosłe + 2 dzieci), 6 pokoi dwuosobowych, 1 pokój jednoosobowy oraz 1 pokój deluxe. Goście mają do dyspozycji kuchnię i świetlico-jadalnię, ogród zimowy z ogrzewaniem podłogowym i klimatyzacją, dwa pomieszczenia na narty oraz ogrodzony parking. Do tego dochodzi recepcja, pomieszczenia techniczne i duży strych.

Wyposażenie:
Pokoje: klimatyzator,  wentylacja mechaniczna,  łazienka z kabiną prysznicową, lodówka (mini bar), odbiornik TV, nowa wykładzina dywanowa, nowe meble hotelowe (biurko, lustra, stoliki, krzesła, łóżka z pościelą, zabudowana szafa wnękowa z zamontowanym sejfem).

Kuchnia dla gości: w pełni umeblowana, z dwoma niezależnymi stanowiskami do przygotowania posiłków przez gości. Wyposażenie kuchni zawiera 2 elektryczne płyty grzewcze, dużą lodówkę, kuchenkę mikrofalową, toster, zastawę stołową (sztućce, kubki, szklanki, kieliszki, garnki itd.), 2 zlewozmywaki, 2 wyciągi do neutralizacji zapachów.

Świetlica: telewizor,  stoły i krzesła  dla 24 gości, instalacja wentylacyjna, klimatyzacja.

Ogród zimowy: stoliki i fotele, ogrzewanie podłogowe, klimatyzacja, wentylacja mechaniczna.

Instalacje: ogrzewanie gazowe, wodociąg miejski, kanalizacja miejska, wentylacja mechaniczna, klimatyzacja.
 

Finanse i potencjał
Pensjonat może przynosić niezły dochód, jeżeli taki będzie Twój cel.
Pensjonat można również użytkować jako wygodne miejsce spotkań z przyjaciółmi.

Dzienny przychód wynosi przy pełnym obłożeniu 2050 złotych.  Taki przychód Właściciele uzyskują przy stałych, umiarkowanych cenach - (120 zł pokój 1-osobowy, 200 zł pokój 2-osobowy, 230 zł pokój delux, 250 zł pokój rodzinny(2 osoby dorosłe + 2 dzieci). Przychody można znacząco zwiększyć poprzez rozszerzenie oferty pensjonatu o pobyty jednodobowe.

Pensjonat może być wynajmowany przez cały rok. Sezon martwy jest krótki. Występuje jesienią, kiedy pada deszcz  oraz zimą, kiedy nie ma śniegu. Największe zainteresowanie występuje w okresach świątecznych, w czasie wakacji i ferii, podczas weekendów, a także podczas imprez typu: Puchar Świata w skokach narciarskich, Tydzień Kultury Beskidzkiej czy Piknik Country (Wiślaczek).

Koszty stałe, kiedy nie ma gości są niskie i wynoszą około 1000 zł miesięcznie. Koszty te obejmują podatek od nieruchomości, telefon, Internet, wodę, ścieki, gaz i abonament RTV za 10 odbiorników telewizyjnych.

Właściciele włożyli dużo serca i pieniędzy, aby zapewnić gościom wysoki standard i miłą atmosferę. Ważne względy rodzinne powodują, że musieli mocno ograniczyć przyjmowanie gości, między innymi poprzez wycofanie z oferty pobytów jednodobowych. Jest to również główny powód dla którego zdecydowali się na sprzedaż.

Walory lokalizacji
Wisła to miasto Adama Małysza. Jest znanym w Polsce ośrodkiem turystycznym i nie wymaga specjalnej reklamy. Ciągle się rozwija i co roku pojawiają się nowe atrakcje.

Położenie pensjonatu w ścisłym centrum przy głównym deptaku zapewnia wygodny dostęp do wielu atrakcji. Mamy do dyspozycji restauracje, kawiarnie, pizzerie i inne rozrywki.
Około 200 m od pensjonatu mamy wyciąg narciarski Skalnite. Taka sama odległość dzieli nas od amfiteatru, w którym odbywają się liczne imprezy. Tylko 800 m mamy do parku wodnego TROPIKANA i hotelu Gołębiewski.

Dodatkowo w bieżącym roku ruszyły duże inwestycje związane z budową wyciągów narciarskich w Szczyrku. Możliwość korzystania z infrastruktury turystycznej Wisły, Ustronia i Szczyrku jest dużym atutem.

Więcej zdjęć oraz plany pensjonatu znajdziesz na naszej stronie Józef Kufel Nieruchomości.

Jeżeli chcesz poznać więcej szczegółów, zapraszam do kontaktu. 
 
Obejrzyj na żywo.

Zadzwoń, umów się na prezentację.

Zapraszam !

Nota prawna

Opis oferty zawarty na stronie internetowej sporządzany jest na podstawie oględzin nieruchomości oraz informacji uzyskanych od właściciela, może podlegać aktualizacji i nie stanowi oferty określonej w art. 66 i następnych K.C.

Szczegóły

Symbol oferty JKN-BS-326
Powierzchnia 333,09 m²
Powierzchnia działki 874 m²
Rodzaj obiektu pensjonat_hotel
Stan prawny Własność
Gaz tak - miejski
Woda tak - miejska
Dojazd asfalt
Ogrzewanie własne gazowe - kocioł 2-funkcyjny
Możliwość parkowania tak
Własny parking tak
Wejście od ulicy
Prąd jest
Kanalizacja miejska
PLN
PLN
PLN
PLN
PLN
PLN
PLN
%
PLN
PLN
PLN

PLN

Dane:

PLN
%

Wynik:

PLN
pierwsza rata
ostatnia rata

Napisz do nas

Proszę wypełnić to pole
Proszę wypełnić to pole
Proszę wypełnić to pole
Proszę wypełnić to pole
Zgodnie z ustawą z dnia 29 sierpnia 1997 r. o ochronie danych osobowych (Dz. U. z 2016 r. poz. 922) informujemy, że administratorem Twoich danych osobowych będzie Józef Kufel Nieruchomości z siedzibą przy al. Józefa Piłsudskiego 34/1, 34-300 Żywiec, NIP: 5531329480. Twoje dane będą przetwarzane jedynie w celu udzielenia odpowiedzi na przesłaną wiadomość. Twoje dane będą chronione i nie będą udostępniane innym odbiorcom, chyba że będzie to wynikać z przepisów prawa. Masz prawo do żądania od administratora dostępu do swoich danych osobowych oraz do ich sprostowania, usunięcia lub ograniczenia przetwarzania lub prawo do wniesienia sprzeciwu wobec przetwarzania.
Trwa wysyłanie...

Ta strona wykorzystuje pliki cookies w celach statystycznych oraz w celu dotosowania naszych serwisów do indywidualnych potrzeb klientów. Zmiany ustawień dotyczących plików cookie można dokonać w dowolnej chwili modyfikując ustawienia przeglądarki. Korzystanie z tej strony bez zmian ustawień dotyczących cookies oznacza, że będą one zapisane w pamięci urządzenia.

rozumiem