Opis nieruchomości
3-pokojowy apartament 90 m2 z dużym, widokowym i słonecznym tarasem (43 m2),
miejscem postojowym na granicy Bielska-Białej i Wilkowic!
Przestronny i jasny apartament położony w zacisznym miejscu, wśród dużej ilości zieleni, na łagodnym południowym stoku Magurki (na wysokości 500 metrów n.p.m.), z którego rozciąga się przepiękny widok na pasma górskie Beskidu Małego i Beskidu Śląskiego ze szczytami Magurką Wilkowicką, Szyndzielnią i Klimczokiem. Do mieszkania przynależy miejsce postojowe oraz piwnica.
Lokalizacja budynku zapewnia pełny dostęp do infrastruktury miejskiej - ok. 500 metrów komunikacji miejskiej.
W pobliżu nieruchomości:
Centrum Bielska-Białej 6 km
Centrum Handlowe Gemini Park 4 km
Kryty basen kąpielowy 5 km
Obwodnica w kierunku: Katowic, Cieszyna, Żywca
Centrum Wilkowic 3 km (urząd miejski, poczta, bank, apteka, przychodnia ZOZ, sklepy spożywcze i przemysłowe.
DANE TECHNICZNE:
- okna: PCV
- podłogi: panele, w łazience gres
- ogrzewanie: gazowe - wspólna kotłownia dla budynku
- Opłata do Wspólnoty Mieszkaniowej: ok. 1622 zł/miesięcznie w okresie zimowym wraz z ogrzewaniem (w tym administracja, fundusz remontowy, woda zimna, woda ciepła, C.O.), dodatkowo płatny: wywóz śmieci - płatny od osoby
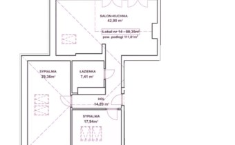
ROZKŁAD POMIESZCZEŃ:
- salon z aneksem kuchennym i dużym tarasem łącznie ponad 80 m2 ( z czego taras 42 m2), , sypialnia (29 m2), pokój (18 m2), łazienka (7 m2), hol,
Dodatkowo: miejsce parkingowe (dodatkowo płatne) oraz piwnica (3 m2)
Do wspólnego korzystania pomieszczenie na rowery i wózki.
Powierzchnia całkowita mieszkania ok. 111 m2 + taras 43 m2
Powierzchnia użytkowa mieszkania ok. 88 m2
2piętro w 2 piętrowym budynku
NAJEMCA PŁACI:
Czynsz najmu: 3 590 zł + 300 zł miejsce parkingowe na zamkniętym parkingu
(możliwość wynajęcia garażu za dodatkową opłatą)
Opłata do Wspólnoty Mieszkaniowej: ok. 1622 zł/miesięcznie w okresie zimowym wraz z ogrzewaniem (w tym administracja, fundusz remontowy, woda zimna, woda ciepła, C.O.),
dodatkowo płatny prąd i wywóz śmieci - płatny od osoby wg obowiązujących stawek
Kaucja: dwukrotność czynszu
Wynagrodzenie biura: 1-czynsz najmu
ZAPRASZAMY NA PREZENTACJĘ!
UMOWA NA MINIMUM 12 MIESIĘCY!
PRZY WYNAJMIE DLA OSOBY PRYWATNEJ WYMAGANA FORMA NAJMU OKAZJONALNEGO
Nota prawna
Opis oferty zawarty na stronie internetowej sporządzany jest na podstawie oględzin nieruchomości oraz informacji uzyskanych od właściciela, może podlegać aktualizacji i nie stanowi oferty określonej w art. 66 i następnych K.C.Szczegóły



