Opis nieruchomości
NA WYNAJEM LOKAL HANDLOWO - USŁUGOWY O POW. 257 MKW., POŁOŻONY NA PARTERZE BUDYNKU „C”, NOWO WYBUDOWANEGO OBIEKTU ZLOKALIZOWANEGO W CENTRUM MIASTA BIELSKA – BIAŁEJ.
Biurowiec wchodzi w skład kompleksu usługowo – handlowo - magazynowego o powierzchni ok. 3 ha - w centrum Bielska-Białej, jednocześnie z bardzo dobrą komunikacją z obwodnicami miasta. W pobliżu liczne hurtownie, sklepy usługowo - handlowe, salony samochodowe, GH SFERA, przystanki autobusowe, dworzec PKP.
DOSKONAŁA LOKALIZACJA:
- nowoczesny kompleks budynków o przeznaczeniu biurowo – usługowo – handlowo - magazynowym o łącznej pow. zabudowań 6500 mkw.
- teren kompleksu o pow. ok. 3 ha, ogrodzony i monitorowany
- drogi wew. wykonane z kostki betonowej, oświetlone
- zagospodarowanie terenu: parking na 150 samochodów oraz urządzone tereny zieleni
- bardzo dobry dojazd dla TIR-ów, do dyspozycji najemcy duży plac manewrowy bez ograniczeń
- zaledwie kilkaset metrów od najważniejszych obiektów znajdujących się z ścisłym centrum miasta,
w pobliżu liczne hurtownie, sklepy usługowo - handlowe, salony samochodowe, GH SFERA, przystanki autobusowe, dworzec) - bardzo dobre połączenie z obwodnicą miasta drogą S1 (kierunek Cieszyn - Zwardoń)
LOKAL wykończony w następujący sposób: podłogi - płytki, wykończone toalety i pomieszczenia socjalne/techniczne, oświetlenie, sufit podwieszany, stolarka aluminiowa, ogrzewanie, sieć teletechniczna, światłowód, woda, kanalizacja, wentylacja mechaniczna z rekuperacją, klimatyzacja, wys. pomieszczeń min. 3,0 m.
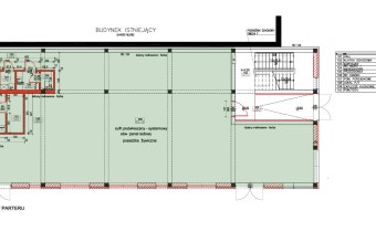
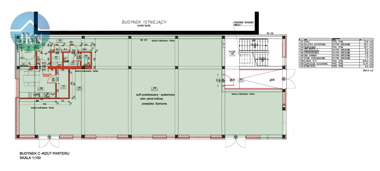
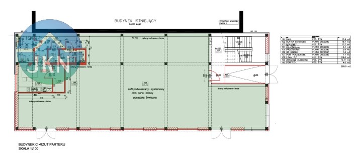
PARTER - pow. 257 mkw.,
- lokal 219 mkw.,
- korytarz 10,7 mkw.
- przedsionek 2,6 mkw.
- wc 5,4 mkw.
- wc 1,5 mkw.
- pom. porządkowe 1,7 mkw.
- kuchnia 12,41 mkw.
- pomieszczenie techniczne 4 mkw.
NAJEMCA PŁACI:
- czynsz najmu 50,00 zł netto/1 mkw., - cena przy najmie powierzchni w standardzie "open space" stan surowy zamknięty,
- opłaty serwisowe: 3,50 zł netto/mkw., pow. użytkowej lokalu (utrzymanie nieruchomości wspólnej zawiera m.in.: sprzątanie, odśnieżanie, oświetlenie, ochrona itp.),
- media: według zużycia
- kaucja: 2-miesięczny czynsz
Powyższy opis nie stanowi oferty handlowej w rozumieniu art. 66 Kodeksu Cywilnego, a dane w nim zawarte mają charakter informacyjny.
Nota prawna
Opis oferty zawarty na stronie internetowej sporządzany jest na podstawie oględzin nieruchomości oraz informacji uzyskanych od właściciela, może podlegać aktualizacji i nie stanowi oferty określonej w art. 66 i następnych K.C.Szczegóły



