Opis nieruchomości
Na sprzedaż lokal o przeznaczeniu usługowo – biurowym o łącznej pow. ok. 130 mkw., usytuowany na parterze nowoczesnego budynku, zlokalizowanego bezpośrednio przy jednej z głównych ulic miasta Bielska-Białej – ul. Piastowskiej.
Nieruchomość położona jest w bardzo atrakcyjnej lokalizacji pod względem komunikacyjnym, około 15 min. (1 – 1,5 km) spacerem do centrum Bielska-Białej oraz głównych arterii komunikacyjnych. W zasięgu ręki znajdują się liczne punkty usługowe, szkoły, przedszkola, punkty użyteczności publicznej, duże osiedla mieszkaniowe oraz tereny zielone i rekreacyjne. Parkowanie odbywa się na terenie nieruchomości – wyznaczone 3 miejsca postojowe dla lokalu oraz na ulicach sąsiadujących z budynkiem – nieruchomość położona jest poza strefą płatnego parkowania.
Głównym atutem lokalu jest jego parterowe położenie oraz znakomita ekspozycja, widoczna bezpośrednio z głównej ulicy. Położenie lokalu umożliwia również zamontowanie oświetlonej reklamy zarówno na fasadzie budynku, jak i w witrynie.
Lokal idealnie nadaje się na kontynuacje wcześniej prowadzonej działalności związanej z treningami personalnymi lub salon kosmetyczny, salon fryzjerski, sklep z odzieżą, sklep sportowy, sklep ze zdrową żywnością, sklep zoologiczny, bank, punkt pobrań diagnostycznych etc.
Dane techniczne:
lokal początkiem 2021 roku przeszedł gruntowny remont, który obejmował m.in.:
- tynki, malowanie ścian + sztukaterie
- podział wnętrza na boksy biurowe - wykonanie szklanych ścianek działowych
- nowe podłogi: panele oraz płytki ceramiczne
- wykonanie szatni
- pełny remont łazienek
- nowe instalacje: wod-kan, prąd, alarm, internet (sieć wewnętrzna + router)
- system wentylacji nawiewno – wywiewny, klimatyzacja
- okna: stolarka okienna aluminiowa, pakiet okien trójszybowy
- drzwi wejściowe antywłamaniowe
- wysokość pomieszczeń: ok. 3 m
- ogrzewanie: gazowe – piec gazowy dwufunkcyjny z zamkniętą komorą spalania.
- rekuperator i kompensator mocy biernej (mniejsze rachunki za prąd)
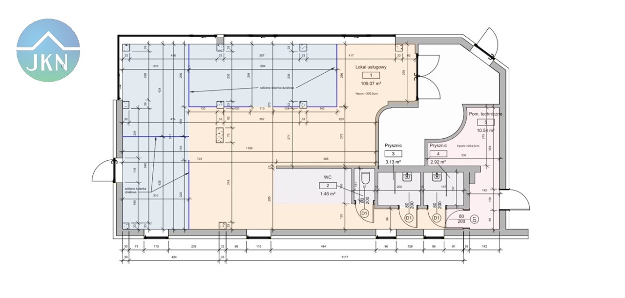
Rozkład Pomieszczeń: 130 mkw.
- wejście do lokalu / recepcja / poczekalnia / 3 wydzielone przeszkleniami pomieszczenia biurowe/ usługowe (o pow. 20,54 mkw., 13,48 mkw., 13,48 mkw.) o łącznej pow. 109,07 mkw.
- 3 x przebieralnia o pow. ok. 7,96 mkw.
- 2 x łazienka z wc oraz prysznicem o pow. 2,92 mkw., 3,13 mkw., 1 x wc o pow. 1,46 mkw.,
- pomieszczenie socjalne o pow. 10,54 mkw.
Cena: 1.370.000,00 zł netto plus 23% VAT
Dodatkowo płatne:
Media: prąd, ogrzewanie c.o., woda, kanalizacja miejska – płatne wg. zużycia
Opłaty do Wspólnoty Mieszkaniowej Adeon: stała opłata ok. 1420,00 zł w tym: administracja, utrzymanie części wspólnych, śmieci, koszty eksploatacyjne.
*W ramach usługi pośrednictwa pobieramy wynagrodzenie w formie prowizji.
ZAPRASZAMY NA PREZENTACJĘ
Nota prawna
Opis oferty zawarty na stronie internetowej sporządzany jest na podstawie oględzin nieruchomości oraz informacji uzyskanych od właściciela, może podlegać aktualizacji i nie stanowi oferty określonej w art. 66 i następnych K.C.Szczegóły



