Opis nieruchomości
Wyjątkowa okazja! Widokowa działka z gotowym projektem i pozwoleniem na budowę domu jednorodzinnego!
Marzysz o własnym domu w malowniczej okolicy? Mamy dla Ciebie idealną propozycję! Oferujemy widokową działkę w przepięknym zakątku gminy Lipowa, (rejon Podlas), z indywidualnym projektem domu jednorodzinnego oraz gotowym pozwoleniem na budowę. Dzięki temu po zakupie działki możesz od razu rozpocząć budowę swojego wymarzonego domu!
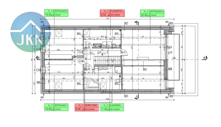
Dom o powierzchni użytkowej 135 m² został zaprojektowany z myślą o komforcie i funkcjonalności:
- Parter:
- Garaż na dwa samochody (45 m²)
- Przestronny salon z aneksem kuchennym (24 m²) z bezpośrednim wyjściem na taras – idealne miejsce na relaks i spotkania z rodziną
- Łazienka (3,6 m²), wiatrołap (4,7 m²) oraz pomieszczenie gospodarcze/kotłownia (11 m²)
- Poddasze użytkowe:
- Dwie sypialnie (16 m² i 17 m²) oraz główna sypialnia (22 m²) z dostępem do światła dziennego
- Łazienka (11 m²) oraz dodatkowe pomieszczenie (8 m²) – idealne na garderobę lub gabinet
Działka jest w pełni uzbrojona (wszystkie media dostępne na miejscu), ogrodzona z trzech stron i posiada dogodny dojazd asfaltowy od południa i północy. Wokół panuje spokojna, jednorodzinna zabudowa, a do centrum Lipowej (z wszelkimi miejscami użyteczności publicznej) jest zaledwie 2,4 km. W odległości 500 m znajduje się przystanek autobusowy, co zapewnia doskonałą komunikację.
To wyjątkowa okazja dla osób, które chcą szybko i bez zbędnych formalności rozpocząć budowę swojego wymarzonego domu w pięknej, spokojnej okolicy.
Nie czekaj – skontaktuj się już dziś, aby poznać więcej szczegółów i zarezerwować tę wyjątkową działkę! Twoje marzenie o własnym domu jest na wyciągnięcie ręki!
Nota prawna
Opis oferty zawarty na stronie internetowej sporządzany jest na podstawie oględzin nieruchomości oraz informacji uzyskanych od właściciela, może podlegać aktualizacji i nie stanowi oferty określonej w art. 66 i następnych K.C.Szczegóły



