Opis nieruchomości
Projekt domu wykonała Pracownia INOSTUDIO z Gliwic i jest on naprawdę przemyślany oraz dostosowany do działki.
Lokalizacja jest niepowtarzalna. Zapewnia piękne widoki, spokojne otoczenie i wygodny dostęp do bogatej oferty usług w centrum Lipowej, które jest oddalone o 1 km. Równocześnie możesz szybko dojechać do Żywca, Bielska i Szczyrku. Dojazd na narty do Szczyrku zajmuje 20 minut.
Nie jest to typowa inwestycja deweloperska. Dom został zbudowany z dbałością o szczegóły i ekologię.
Ściany murowane z pustaków ceramicznych na warstwie bloczków termoizolacyjnych Isomur Plus, okna 3 szybowe z ciepłym montażem w systemie Gealan-Linear z krytymi zawiasami, drzwi zewnętrne Vetrex Premium, rolety aluminiowe z silnikami MOBILUS, system rynnowy Galeco bezokapowy, zbiornik deszczówki do celów sanitarnych 10 m3, izolacja ścian styropian Austrotherm 20 cm, okna dachowe z kołnierzem Thermo.
Dom wykończony z zewnątrz łącznie z ogrodzeniem, podjazdem i tarasem z kostki brukowej. Przyłączony do sieci energetycznej, wodociągowej i kanalizacyjnej. Światłowód doprowadzony pod budynek. Przewidziane ogrzewanie to pompa ciepła. Wnętrze zostało pozostawione do własnej aranżacji przez nabywcę. Wykonano instalacje, tynki wewnętrzne i posadzkę cementową w garażu, tak aby mógł on pełnić rolę magazynu przy pracach wykończeniowych wewnątrz budynku.
Podstawowe atuty:
- wyjątkowa lokalizacja - widok na Skrzyczne, Beskid Śląski, Beskid Mały i Beskid Żywiecki
- dogodny dojazd o każdej porze roku - świetna baza wypadowa na narty i na górskie szlaki
- Jezioro Żywieckie w odległości 6 km
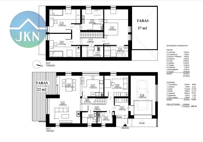
- nowoczesny projekt z dużymi oknami w salonie i wysokimi oknami na poddaszu
- pokrycie dachu płaską dachówką Braas z systemem rynnowym Galeco bez okapowym
- okna 3 szybowe z krytymi zawiasami, ciepłym montażem i roletami zewnętrznymi
- okna dachowe z kołnierzami Thermo
- dom energooszczędny wykończony z zewnątrz
- zbiornik wody deszczowej10 m3 do wykorzystania dla celów sanitarnych
- światłowód doprowadzony pod dom
- możliwość własnej aranżacji bez dodatkowych kosztów związanych z przeróbkami
Zapraszam na prezentację.
Józef Kufel
☎ +48 601-996-588
Nota prawna
Opis oferty zawarty na stronie internetowej sporządzany jest na podstawie oględzin nieruchomości oraz informacji uzyskanych od właściciela, może podlegać aktualizacji i nie stanowi oferty określonej w art. 66 i następnych K.C.Szczegóły



