Opis nieruchomości
DWA ODRĘBNE POKOJE, KUCHNIA, ŁAZIENKA, GARAŻ , OGRÓD 5 ARÓW
ŚWIETNA LOKALIZACJA! UL. WIDOK!
Na sprzedaż wysoki parter domu z odrębnym wejściem z korytarza o powierzchni ok. 62 m², usytuowany w domu dwurodzinnym. Nieruchomość sprzedawana z udziałem wynoszącym 1/2 w działce o powierzchni 1073 m². Do lokalu przynależy piwnica (12,48 m²) oraz garaż (24,78 m²), co stanowi dodatkowy atut tej oferty.
Lokal wymaga generalnego remontu, co daje możliwość dostosowania wnętrza do własnych potrzeb i preferencji!
Lokalizacja jest bardzo dogodna – w pobliżu znajdują się przystanki autobusowe, szkoła oraz sklep. Dodatkowo, lokal znajduje się w sąsiedztwie licznych terenów zielonych, co zapewnia komfortowy wypoczynek na świeżym powietrzu. Warto dodać, że dojazd do głównych obwodnic jest szybki i łatwy, co gwarantuje doskonałą komunikację z innymi częściami miasta.
DANE TECHNICZNE:
- okna: PCV,
- ściany: cegła + styropian 10 cm, tylko tradycyjne
- dach: stropodach pokryty papą
- podłogi: parkiet, kafle
- ogrzewanie gazowe, piec dwufunkcyjny
- kanalizacja i woda miejska
- ciepła woda: osobny piec gazowy
- prąd
- internet: po kablu
- jedno pomieszczenie w piwnicy - kotłownia, jest wspólne z Właścicielem mieszkania na piętrze, ale w praktyce Sąsiad nie korzysta z niego
- rok budowy: 1961 , rozbudowa domu w tym ocieplenie i nowa elewacja w 1992 rok, podział na lokale nastąpił w 1998 rok
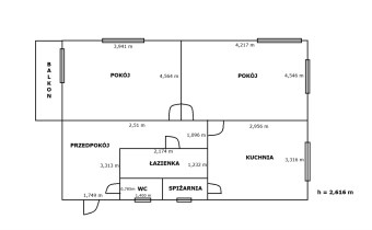
ROZKŁAD POMIESZCZEŃ:
- 2 pokoje z czego jeden z balkonem,
- kuchnia ze spiżarnią,
- łazienka,
- WC,
- przedpokój
- dodatkowo piwnica 12 m2 oraz garaż 25 m2
Wymiary pomieszczeń:
- pokój z balkonem: 4,5m x 3,93m
- duży pokój: 4,54m x 4,22m
- kuchnia: 2,95m x 3,44m
- łazienka: 1,22m x 2,18m
- WC: 0,8m x 1,4m
Możliwość połączenia łazienki z WC
Powierzchnia całkowita: 99,18 m2
Powierzchnia użytkowa: 61,92 m2 + ok. 37 m2 przyziemia (garaż i pom. gospodarcze)
Udział 1/2 w działce 1073m2 = 536,5 m2 (w tym ogródek na wyłączność + części wspólne)
OFERTA TYLKO U NAS!
KUPUJĄCY NIE PŁACI WYNAGRODZENIA!
Nota prawna
Opis oferty zawarty na stronie internetowej sporządzany jest na podstawie oględzin nieruchomości oraz informacji uzyskanych od właściciela, może podlegać aktualizacji i nie stanowi oferty określonej w art. 66 i następnych K.C.Szczegóły



