OFERTA ARCHIWALNA - NIE JEST JUŻ AKTUALNA

Łodygowice
- Dom na sprzedaż

3 pokoje 0,00 m2 0,00 zł/m2

280 000 zł

sprzedane
Józef Kufel

właściciel biura

Opis nieruchomości

Bierna nad Jeziorem Żywieckim - nowy dom do wykończenia o pow.uż. ok. 110 mkw. Położony na super widokowej działce z dogodnym całorocznym dojazdem. Dom idealny dla rekreacji i do stałego zamieszkania. Solidne wykonanie i najlepsze materiały (Porotherm 30 cm, kominy nad dachem z pełnej cegły klinkierowej, okna PCV 5 komorowe.

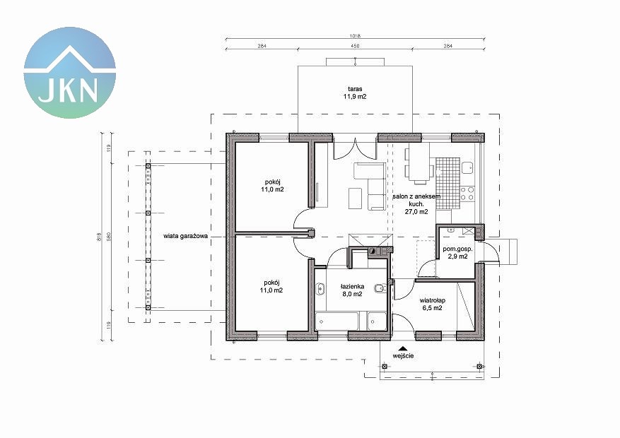
Rozkład pomieszczeń

salon z aneksem kuchennym 28 mkw., pokój 10,36 mkw., pokój 11 mkw., łazienka 8 mkw., kotłownia 3 mkw., wiatrołap 6,5 mkw., wiata garażowa 17,3 mkw. )

Dodatkowo do dyspozycji poddasze do adaptacji o powierzchni podłogi około 65 mkw. Doprowadzone wszystkie media - prąd, woda, gaz, kanalizacja, telefon. Cena obejmuje stan wykończeniowy z wykonanymi instalacjami (bez osprzętu), tynkami i wylewkami. Nie obejmuje elewacji. Atutem nieruchomości jest atrakcyjna lokalizacja w pobliżu Żywca, Bielska, Szczyrku, Międzybrodzia i Góry Żar.

Nota prawna

Opis oferty zawarty na stronie internetowej sporządzany jest na podstawie oględzin nieruchomości oraz informacji uzyskanych od właściciela, może podlegać aktualizacji i nie stanowi oferty określonej w art. 66 i następnych K.C.

Szczegóły

Symbol oferty JKN-DS-40
Powierzchnia 0,00 m²
Powierzchnia użytkowa 110,00 m²
Powierzchnia działki 498 m²
Liczba pokoi 3
Rodzaj domu wolnostojący
Technologia budowlana pustak ceramiczny
Liczba pięter w budynku 2
Stan prawny Własność
Zagosp. działki niezagospodarowana
Ukształtowanie działki płaska
Kształt działki prostokąt
Pokrycie dachu dachówka ceramiczna
Stan budynku do wykończenia
Rok budowy 2010
Gaz tak - miejski
Woda tak - miejska
Dojazd asfalt
Prąd tak
Kanalizacja miejska

Pomieszczenia

Powierzchnia pokoi 10,4;11;28 m2
Rodzaj kuchni aneks kuchenny - połączony z salonem
Typ łazienki razem z wc, z oknem
Liczba przedpokoi 1
PLN
PLN
PLN
PLN
PLN
PLN
PLN
%
PLN
PLN
PLN

PLN

Dane:

PLN
%

Wynik:

PLN
pierwsza rata
ostatnia rata

Napisz do nas

Proszę wypełnić to pole
Proszę wypełnić to pole
Proszę wypełnić to pole
Proszę wypełnić to pole
Zgodnie z ustawą z dnia 29 sierpnia 1997 r. o ochronie danych osobowych (Dz. U. z 2016 r. poz. 922) informujemy, że administratorem Twoich danych osobowych będzie Józef Kufel Nieruchomości z siedzibą przy al. Józefa Piłsudskiego 34/1, 34-300 Żywiec, NIP: 5531329480. Twoje dane będą przetwarzane jedynie w celu udzielenia odpowiedzi na przesłaną wiadomość. Twoje dane będą chronione i nie będą udostępniane innym odbiorcom, chyba że będzie to wynikać z przepisów prawa. Masz prawo do żądania od administratora dostępu do swoich danych osobowych oraz do ich sprostowania, usunięcia lub ograniczenia przetwarzania lub prawo do wniesienia sprzeciwu wobec przetwarzania.
Trwa wysyłanie...

Ta strona wykorzystuje pliki cookies w celach statystycznych oraz w celu dotosowania naszych serwisów do indywidualnych potrzeb klientów. Zmiany ustawień dotyczących plików cookie można dokonać w dowolnej chwili modyfikując ustawienia przeglądarki. Korzystanie z tej strony bez zmian ustawień dotyczących cookies oznacza, że będą one zapisane w pamięci urządzenia.

rozumiem